- HOME
- レンタルキッチンスペース一覧
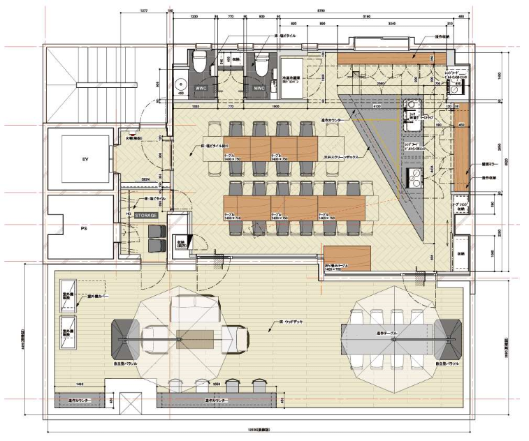
- アースキッチン 築地
EARTH KITCHEN
TSUKIJI
-
最大人数
約40名
(室内24席、テラス16席) -
ご利用可能時間
9:00~23:00
(撮影の場合、要相談) -
ご利用料金
5,000円/1h~
(予約帯により異なる)
アースキッチン 運営者のおすすめコメント
- 室内に24席、テラスに16席の最大で40名までのご利用が可能です。室内にはテーブルを5つ用意しておりますので、使用する用途に適したレイアウトに変更可能です。100インチの電動スクリーンとプロジェクターがございますので、お客様の大切なひと時を演出してくれます。特徴的な三角の大型キッチンは職人さん手作りの完全オリジナルアイランドキッチンとなっております。2人が同時に使える大きいシンクやハイパワーなIHコンロが2つありますので、調理を楽しみながらご自宅やお店では経験できない心休まる有意義な時間を過ごせます。
アースキッチン築地で 利用シーン
SCENE
料理教室
ママ会
撮影スタジオ
スポーツ観戦
婚活
ビジネス
パーティー
イベント
飲み会
企業セミナー
女子会
アースキッチン 築地
おすすめポイント
RECOMMENDED
POINTS
最大40名様まで
ご利用が可能!
壮大な100インチのプロジェクター完備!
スポーツ観戦や動画の投影など多岐にわたりご利用可能です。
Bluetoothでお好きな楽曲をスピーカーから流すこともできます。
一面ガラス張りなので開放的な空間。
写真映えするスタイリッシュモダンなレンタルキッチンとなっております。
洗練されたお洒落なキッチン
みんなで囲って使える三角形の大きくてスタイリッシュなキッチン。
ハイパワーのIHコンロで新たな料理分野にチャレンジできます。
最短70秒で洗浄ができる業務用食洗器が設置してあるので後片付けもみんなでやればあっという間です!
一望できるオープンテラス
二面性のあるオープンテラスには、固定席やカウンター席もあり様々なシチュエーションを演出できます。明るく開放的な昼間には賑やかな食卓、大切な方との特別な夜には勝どきやレインボーブリッジ等の湾岸エリアの夜景を眺めながら優雅で落ち着きのある大人な時間を過ごせます。
アースキッチン 築地
よくあるご質問(FAQ)
Question & Answer
- Qプロジェクター投影可能なものはありますか?
- Aご用意しているのはHDMIケーブルがございます。
ゲーム・パソコン等に接続できれば使用可能です。 - Q領収書は発行可能ですか?
- A法人でのお申し込みの際に発行可能です。後日メールにて送付いたします。
- Q内覧することはできますか?
- A
内覧可能です。
お問い合わせフォームよりお問い合わせください。
※平日の9:00~18:00で対応可能です。
アースキッチン 築地
ご利用料金
Usage fee
アースキッチン築地のご利用料金をご紹介いたします。
平日と土日祝日では金額が異なりますのでご利用の際はご確認をお願いいたします。
| 平日 | ||
|---|---|---|
| 4時間~ | 7,500円/1h | |
| 8時間~ | 6,500円/1h | |
| 1日(14時間) | 5,000円/1h | |
| スチール使用 | 3時間~ | 13,000円/1h |
| ムービー使用 | 3時間~ | 18,000円/1h |
| 土日祝 | ||
|---|---|---|
| 4時間~ | 9,000円/1h | |
| 8時間~ | 8,000円/1h | |
| 1日(14時間) | 6,500円/1h | |
| スチール使用 | 3時間~ | 15,600円/1h |
| ムービー使用 | 3時間~ | 21,600円/1h |
アースキッチン 築地
施設概要
INFORMATION
アースキッチン築地の 施設設備
- 無料Wi-Fi
- オリジナルアイランドキッチン
- オープンテラス
- 100インチのプロジェクター
- IH 3口コンロ
- シンク 1ヶ所
- 業務用オーブンレンジ
- 業務用食洗器
- 業務用冷蔵庫
- トイレ(男女)
- 最大40名
- 大型冷蔵庫
- 最上階
- Bluetooth
- 58㎡
- スピーカー
設備・備品一覧はこちら
設備・備品一覧を印刷してご利用ください
- 名称
- アースキッチン 築地
- 面積
- 58㎡
- 収容人数
- 着席 ~40席
- 所在地
- 中央区築地6-22-3 ウィンド築地Ⅱビル6階
- アクセス
- 東京メトロ日比谷線 / 築地駅 徒歩約5分
都営大江戸線 / 築地市場駅 徒歩約5分
都営浅草線 / 東銀座駅 徒歩約8分
東京メトロ日比谷線 / 東銀座駅 徒歩約8分
都営大江戸線 / 勝どき駅 徒歩約10分 - 備考
- 延⾧料金
予約時間を過ぎたら頂戴いたします。
原状回復
フロア内のテーブル・イスなども、ご要望に応じて移動させることが可能です。終了までに元に戻す原状回復をお願いいたします。
アースキッチン 築地
ご予約・空き状況
CALENDAR
※下に予約カレンダーが表示されない場合は
こちらをクリックしてください
※現在システム不具合により一部予約が反映されていない状況です。
ホームページから新たにご予約をご検討されているお客様は、
直接お問い合わせいただけますと幸いです。
ご迷惑をおかけし申し訳ございません。
※「要確認」は弊社運営担当まで電話にてご連絡ください
アースキッチン 築地
ご利用時の
お願い・利用規約
TERMS OF SERVICE
- ご利用について
- 必ず使用時の状態に戻す原状回復を完了してからのご退出をお願い致します。
破損や原状回復が完了していない場合、後日別途請求させていただく場合がございます。 - ごみ処理について
- 以下の枚数をはじめにご提供します。
可燃ごみ・・・45L袋 1枚、不燃ごみ(ビニール系ごみ)・・・45L袋 1枚、ビン・・・45L袋 1枚
缶・・・45L袋 1枚、ペットボトル・・・45L袋 1枚
分別して置いててください。粗大ごみは処理することができません。 - キャンセルについて
- 予約確定後、キャンセル又は日時変更される場合キャンセル料が発生します。
・6日前 30%
・5日前 40%
・4日前 60%
・3日前 70%
・当日、前日、2日前 100%
ご利用に関するお願い
第1条(利用規約及び契約について)
- 1. アースキッチン(以下「本施設」といいます)の利用申込者(本施設の利用申込をする20歳以上の個人又は法人を意味します)は、本利用規約(以下「本規約」といいます)を遵守することに同意し、かつ、本施設の利用について事前に確認することとします。また、利用者(利用契約(契約については次項に定義します)を締結した、本施設を利用する20歳以上の個人又は法人を意味します)は、本利用規約に従い、運営者である株式会社アースウィンドの指示のもと本施設の利用を行わなくてはなりません。
2. 利用申込者が所定の方法にて利用予約申込みをし、予約時に利用料を決済した時点で、利用申込者と運営者との間に本規約で定める事項を内容とする本施設の利用に関する利用契約が成立します。但し、運営者が、利用者の利用用途が本規約に反する内容と判断した場合はこの限りではありません。
第2条(反社会的勢力の排除)
- 1. 運営者および利用者は、それぞれ相手側に対し、次の各号の事項を確約します。
(1)自らまたはその役員(業務を執行する社員、取締役、執行役またはこれらに準ずる者をいう)が、暴力団、暴力団関係企業、総会屋もしくはこれらに準ずる者またはその構成員(以下総称して「反社会的勢力」という)ではないこと
(2)利用目的が反社会的団体の勢力を誇示、これらの資金源とするために催事を行うなど反社会的団体を援助・助長し、またはその運営に資するものでないこと
2. 運営者および利用者は、反社会的勢力の排除のため、双方が相手方による前項の確約に依拠して利用契約の締結および履行をするものであることを確認します。
第3条(利用可能施設)
- 1. 利用者が利用することができる本施設の範囲は利用申込をした本施設内専用部分(バルコニー含む)に限ります。
2. 利用者は、前項の施設のうち一部を利用しない場合にでも、利用料の減額を請求することはできません。
3. 利用者は、第1項の施設に付帯する設備を使用できます。但し、この場合の利用料その他の利用条件については第9条(付帯設備の使用およびその利用料等)の定めに従うものとします。
第4条(予約申込および契約)
- 1. 予約可能な利用営業日は専用ホームページ予約状況(URL https://www.earth-kitchen.jp/)に掲載いたします。但し、施設・設備の点検等のため臨時に休館する場合を除くものとします。
2. 予約申込み可能期間は、希望期日の60日前から開始とします。
3. 利用申込者は、申込みの際、利用目的、内容を運営者に伝えなければなりません。運営者は、その利用内容を本規約等に照らし、利用の可否を決定する権限を持つものとします。
第5条(利用方法について)
- 本施設の利用方法は、各種パーティー、セミナー、会議、撮影、料理教室、ワークショップ、鑑賞会等とします。また、以下の利用並びに以下に類する利用は一切禁止とし、いずれかに該当したときは、運営者は利用者に対し催告をすることなく直ちに利用契約を解除することができます。この場合、解除の通知を発信したときに利用契約は当然に終了するものとします。
(1) 宗教勧誘・違法セミナー・商談・その他それらに類する集会の開催
(2) 公序良俗または法律に反する目的
(3) 飲食店営業・物販等
第6条(利用期間及び利用料)
- 1. 利用期間とは、利用場所において準備を開始する時刻から原状回復を完了して利用場所から完全に退出する時間までの期間をいいます。
2. 利用料金については専用ホームぺージ(URL https://www.earth-kitchen.jp/)に掲載します。また利用に際し、準備・設営・撤去など使用途に関わらず営業時間外(23:00~9:00)の延長はできません。
第7条(利用料金の支払い方法・キャンセル)
- 1. 利用申込者は所定の利用料金を予約時にオンライン決済にて支払うものとします。
2. 利用申込者は所定の利用料金を銀行振込にて支払うことができます。なお、振込みにかかる振込手数料は利用申込者負担とします。
(1)銀行振込は請求書到着後原則3日以内(土日祝日を除く)に所定の利用料金の入金確認が取れるものとします。
(2)銀行振込の場合、利用予定日の前日までに入金確認が取れない場合は、当然にキャンセルしたものとみなし、次項のキャンセルに料等を支払わなければなりません。
3. キャンセルをする場合には、キャンセル時に利用料金を原則土日祝並びに夏季・年末年始・ゴールデンウィークによる休業日を除いて10営業日以内に返金とするが、以下のキャンセル料・返金手数料を差引した金額を返金するものとします。
(1)クレジットカード決済の場合は返金手数料5.0%
(2)銀行振り込みでキャンセルの場合は返金時の振込手数料
(3)キャンセルポリシーについては以下をとおりです。なお、受付日は本施設営業時間(9:00~23:00)に準ずるものとし、営業時間外の申出は翌営業日の受付として数えるものとします。
イ. 利用日の6日前にキャンセル受付:利用料金の30%
ロ. 利用日の5日前にキャンセル受付:利用料金の40%
ハ. 利用日の4日前にキャンセル受付:利用料金の60%
ニ. 利用日の3日前にキャンセル受付:利用料金の70%
ホ. 利用日の2日前、前日、当日にキャンセル受付:利用料金の100%
第8条(利用者の責任および注意義務)
- 1. 利用者の責任担当者または代理人は、利用期間中、本施設に必ず常駐してください。
2. 利用者は、常に善良な管理者の注意をもって本施設を利用することを確約するものとします。また、利用者、その従業員、利用日の来場者、その他の関係者も同様の義務を負うものとします。
3. 利用者が本施設を利用するに当たって必要な受付、人員整理、誘導、来場者対応および警備を、全て自らの責任と負担にて行っていただきます。
4. 利用者は、全て自らの責任と負担において、必要な全ての事前準備および利用期間終了までの間に第19条(利用終了の措置)原状回復作業を行っていただきます。
第9条(付帯設備の使用およびその利用料等)
- 1. 利用者が、本施設に設置された運営者所有の付帯設備及び備品の使用を希望するときは本施設利用申込時に申請することとします。この場合、使用可能な付帯設備及び備品は運営者が指定し、利用者は、利用方法、利用時間、利用料金およびその支払方法、利用期日その他に関して全て本施設の定めに従うこととします。
2. 利用者は、付帯設備及び備品を利用する場合は、利用開始前に設備の数量・破損等現況を事前に確認しなければならなりません。
第10条(広告または看板等の掲示)
- 1. 本施設および近辺での広告及び看板・のぼり等の設置、チラシその他の宣伝物の配布は禁止です。
2. 利用者は、運営者に対し、本施設および近辺に既に存する広告または看板等の取り外しや削除を要求できません。
第11条(撮影・放映等)
- 1. 利用者は、本施設および近辺にて録画、録音または撮影(以下、「本件撮影等」という)を希望するときは、利用開始日の14日前までに、本件撮影等の目的、使用する器材について、書式にて運営者に申し入れ、運営者の承諾を得ることとします。
2. 利用者は、本件撮影等によって作製した映像もしくは画像(以下、「映像等」という)の放映、上映、放送、配信、出版、製品化など(以下、「放映等」という)を希望するときは、事前にその詳細を書式にて運営者に申し入れ、承諾を得る必要があります。映像等を二次使用する場合も同様とします。
3. 利用者は、映像等の放映等を行う場合、当該放映等において、本施設の景観および広告物の映像に変更、切除その他の改変を加えることはできず、これらの告知の内容および方法は、利用者と運営者が協議して定めるものとします。
4. 利用者は、運営者の承諾を得た場合に限り、第三者に映像等の放映等の権限を譲渡し、または放映等を許諾することができるものとします。この場合、当該第三者に本条の定めを厳守させなければなりません。
第12条(利用権の譲渡禁止) 利用者は、利用契約上の地位を第三者に譲渡もしくは転貸できません。
第13条(禁止事項)
- 利用者および来場者その他第三者は、以下の行為を禁止します。
(1) 本施設および周辺での諸設備の設置や飾り付けなどの装飾行為を行うこと
(2) 本施設および周辺で物品販売、勧誘、客引き、募金、チラシその他の宣伝物の配布、掲示、撮影、又はこれに類する行為を行うこと
(3) 本施設および周辺に危険物を持ち込むこと
(4) 反社会的勢力ならびにその構成員及び関係者を本施設に入場させること
(5) 本施設以外の場所で飲食、喫煙すること。なお、本施設は全て禁煙とする
(6) ごみを投棄するなど、本施設および周辺を不衛生な状態にすること
(7) 騒音、振動、異臭を発するなど本施設および周辺に迷惑となる行為をすること
(8) 壁、床、器具その他本施設及び備品の一切に対し、落書き、損傷および破壊等これらを汚損する行為をすること。また、建物、付帯設備への釘、画鋲及びガムテープ・セロハンテープを含むすべてのテープ類の使用
(9) 暴力行為、無謀行為など自己および他人に危険を生じさせる行為をすること
(10) 過度に照明を暗くし、もしくは過剰な音量を発するなど心身の健康に支障を来す演出、または博打もしくは富くじの販売など社会通念を逸脱する企画を行うこと
(11) 本施設周辺に自転車、バイク、自動車などを路上駐車すること
(12) 定員を超える来場者の動員、および重量(180Kg/㎡)を超える重量物等の設置
(13) ヌード撮影等公序良俗に反し、風紀を乱す一切の行為
(14) 犬・猫・鳥その他愛玩動物・家畜類等の持込み(身体障がい者補助犬(盲導犬・聴導犬・介助犬)を除く)
(15) 楽器の演奏、声楽及び本施設および近辺に迷惑となる音量を発するもの
(16) 書道、絵画などの実演、教室など本施設を汚損する恐れのある利用
(17) 運営者の保有する画像・名称・連絡先等を無断で使用すること
(18) 本施設備品以外の火気持ち込み・使用
(19) 展示会、物販、撮影等にて什器・機器等を床上に接する場合は、所定の養生パネルを必ず使用すること
(20) その他、運営者が本施設の諸設備の維持または保全のために禁止した事項
(21) その他、本施設および近辺で、来場者その他の第三者に迷惑を及ぼす言動及び行為
第14条(運営者の施設管理権)
- 1. 利用者が前条の定めに違反しもしくは運営者の注意に従わない場合、または来場者その他第三者が前条の定めに違反しもしくは運営者の担当者・利用者の従業員その他関係者の注意に従わない場合は、運営者はこの者を本施設から退場させることができるものとします。
2. 利用者および来場者、その他第三者は、本施設において自己の身体および財産について自らの責任でこれを管理することとします。運営者は、本施設での盗難、紛失、障害等の損失に対して一切責任を負わず、利用者はこれに異議を述べないものとします。
3. 利用者は前二項の定めについて、関係者や来場者に周知徹底しなければならなりません。
第15条(運営者の立入権) 運営者は、本施設の維持、保安及び管理等のために利用期間内に、いつでも本施設の適宜の場所に立入り、必要な措置を講ずることができます。この場合、利用者は、運営者が講ずる措置に必要な協力をしなければなりません。
第16条(不可抗力などによって利用が不可能となった場合の措置)
- 1. 天災地変・テロなどの不可抗力、その他設置者および運営者の責に帰すことができない事由によって、利用者が利用の目的に従って本施設を利用できなくなったとき、利用契約は当然に終了します。
2. 前項の場合、利用者は未払いの利用料金の支払いを要しません。
3. 第1項の場合、利用者は、運営者に対し、損害賠償その他何らの請求をすることができず、万一、来場者その他の第三者との間に紛議が生じたときは、自らの責任と費用にてこれを処理解決し、運営者に対し財産上の負担その他一切の迷惑を及ぼさないものとします。
4. 本施設の機材・設備の故障等により、利用者および来場者の目的が達成されなかった場合であっても、運営者は損失補償は行いません。
第17条(利用者の損害賠償責任)
- 1. 利用者、その従業員、利用日の来場者、その他の関係者が本施設利用に際して諸施設を汚損または毀損したときは、利用者は、運営者に対し原状回復のための費用その他これによって運営者が被った損害を賠償します。備品等破損に関しては、実費請求とします。
2. 利用期間中に利用者、その従業員、利用日の来場者、その他の第三者に人身事故その他の損害が生じたときは、本施設の不具合等施設上の問題に起因する場合を除き利用者は、全て自らの責任と費用にて当該来場者らに対し直接損害を賠償し、運営者及び第三者に対し財産上の負担その他一切の迷惑をかけないものとします。
3. 前項の場合、運営者が第三者より責任を追及され当該第三者に損害賠償を行ったときは、運営者は利用者に対し、損害賠償に要した費用の一切を請求できるものとします。
第18条(利用開始前及び開始中の契約の解除)
- 1. 利用者が下記各号のいずれかに該当したときは、運営者は利用者に対し、何らかの催告をすることなく直ちに利用契約を解除することができます。この場合、解除の通知を発信したときに利用契約は当然に終了します。
(1) 利用申込に虚偽の記載をしたことが判明した場合
(2) 運営者が利用内容について法令又は公序良俗に反すると認めたとき
(3) 運営者の信用を毀損する行為があったとき
(4) 運営者が、本施設および近辺に迷惑を及ぼすおそれがあると判断したとき
(5) 社会的な道徳または倫理に反する行為があったとき
(6) 運営者の運営方針に反する行為があったとき
(7) 本規約第2条(反社会的勢力の排除)に違反していることが判明したとき
(8) 利用の内容等により運営者、利用者、第三者の間に紛争を生じ、またはそのおそれがある場合
(9) その他、利用者が利用契約および規約に定める事項を遵守しない場合、または運営者が指示した事項に従わない場合
2. 前項によって利用契約が終了したとき、運営者は、利用者に対し、受領済の利用料金を一切返還せず、利用料金総額の全部を取得し、このほか運営者等が被った損害の賠償を請求します。この場合、利用料金の未払いがあるときは、利用者は、運営者に対し未払い額の全額を契約終了の日から3日以内に支払います。
第19条(利用終了の措置)
- 1. 利用者は、全て利用者の費用にて利用場所に搬入した利用者の設備を搬出し、本施設の清掃および備品類を洗浄・清掃等をして原状に回復し、利用期間満了の時までに本施設から完全退出していただきます。
2. 前項の原状回復作業は全て「原状回復仕様書」に基づいた内容に従って実施いただきます。
3. 利用者が利用期間満了の時までに原状回復を完了しなかったときは、利用者は、運営者に対し、原状回復完了の時までの超過時間につき時間外延長料金を支払い、このほか設置者および運営者が被った損害を賠償していただきます。(一時間当たりの利用料相当額×2.0を乗じた金額、30分ごとに請求)
4. 釘その他身体に危険を及ぼすおそれのあるものの残置など、第1項に定める原状回復に問題(隠れた問題も含む)があり、これにより運営者、その他の第三者が損害を被った場合は、利用者はその損害を賠償しなければなりません。 5. 利用者、その従業員、利用日の来場者、その他の関係者が持込んだ物(飲食物を含む)は全て利用者の責任にて持ち帰りいただきます。なお、残置物があった場合は運営者の判断で処分できるものとし、処分にかかる費用は利用者負担とします。ただし、残置物の処分について利用者は運営者に対し一切異議申し立てができないことをあらかじめ了承します。
6. ゴミの分別は本施設指定の分別方法とし、運営者は分別方法を利用者へ説明します。利用者は、利用者、その従業員、利用日の来場者、その他の関係者に対してごみ分別方法を周知徹底することを確約します。
7. 利用者は運営者指定のごみ袋を使用し、それぞれ以下の枚数を利用者へ提供します。
可燃ごみ・・・45L袋1枚
不燃ごみ(ビニール系ごみ)・・・45L袋1枚
ビン・・・45L袋1枚
缶 ・・・45L袋1枚
ペットボトル・・・45L袋1枚
8. 利用者は、前項のごみ袋を超えた場合、可燃ごみ(1袋当たり1,000円(税込み))、不燃ごみ(1袋当たり2,000円(税込み))、ビン(1袋当たり1,000円(税込み))、缶およびペットボトル(1袋当たり500円(税込み)、段ボール(段ボール1枚当たり200円(税込み))を運営者へ別途支払うものとします。また、ゴミ袋に入りきらないものや所定の分別区分以外のごみがある場合は、利用者は運営者に対し処分に要する実費を支払うものとします。
第20条(騒音規制等) 利用者は、本施設を利用するにあたり騒音規制に関する法令等および運営者の指示を遵守し、その他周辺環境の維持に努めなければなりません。
第21条(防犯カメラ)
- 利用者は、運営者が本施設の防犯・施設利用状況の確認、施設管理の観点から防犯カメラにて映像を録画することを予め了承します。
運営者は、次のいずれかに該当する場合を除き、第三者に映像を提供しません。
(1) 法令等に定めがある場合
(2) 捜査機関から犯罪又は事故の捜査の目的で、文書により映像提供の要請を受けた場合
(3) 個人の生命、健康、生活又は財産を保護するため、緊急かつやむを得ないと認められる場合
(4) 本人の同意があるとき
第22条(非常時における対応)
- 1. 利用者は、本施設の利用に際して、不測の事態に備え非常口、消火設備、避難方法などを事前に確認するとともに、関係者に対して周知徹底をお願いします。
2. 地震、火災その他の非常事態が生じ、関係諸官庁から特別な指示があった場合、利用者は、自らの責任でこれに従い対処し、また、運営者の指示に従わなければならなりません。
第23条(提出書類) 運営者が必要と判断した場合は、利用者に対し、本人確認書類、会社案内、現在事項証明書、印鑑証明書等、運営者が指示する書類の提出を求めることができ、利用者は、これに従わなければならなりません。
第24条(定めのない事項)
本規約に定めのない事項は、利用者が本施設を健全な目的のために円滑に利用することを第一義として、誠意を持って協議の上円満に解決するものとします。
本規約は2021年3月に制定したもので、今後変更する場合がございます。
※「ご利用に関するお願い」を最後までお読みください。その後、「同意」をクリックをお願いします。
- ご利用可能なお支払い方法
- 銀行振り込み・クレジット決済
お急ぎの方はお電話にてお問い合わせください。問い合わせ後に予約空き状況など詳細なやり取りをさせていただきます。

















